产品中心

产品中心

Product Center

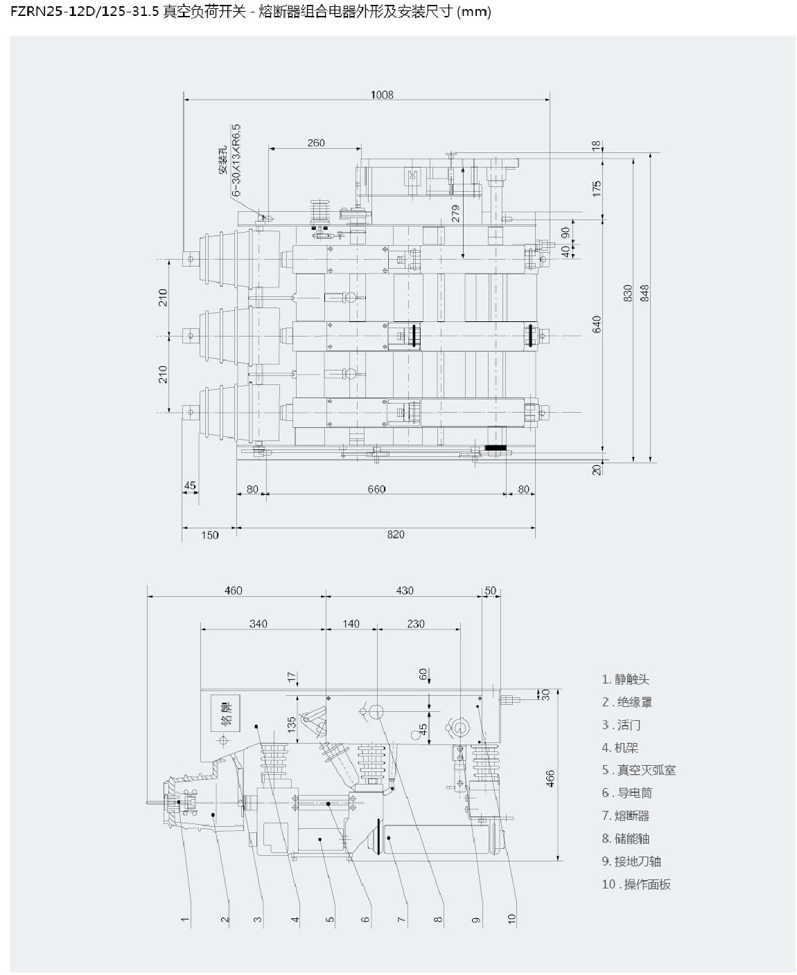
  • FZN25-12/FZRN25-12真空负荷开关
  • FZN25-12/FZRN25-12真空负荷开关
  • FZN25-12/FZRN25-12真空负荷开关
  • 产品详情

fzn.jpgfzn1.jpgFZN2.jpg

相关产品

Related Products